


产品名片:
飞塔阀门生产的D71F46衬氟手动对夹式蝶阀采用带有球形密封表面的衬聚四氟乙烯包衬蝶板,配以阀座基部的 硅橡胶衬垫调节阀门的密封性能;该阀门操作轻便,严密的密封性能,超 长的使用寿命;可作快速切断或调节流量之用。适用于要求可靠密封和 良好调节特性的场合。阀体采用分体式,阀轴两端的密封由蝶板与阀座 之间的旋转基面加氟橡胶来控制;从而达到产品结构紧凑、外形美观,工艺合理、性能可靠。保证阀轴不与腔内流体介质接触,更换阀轴时非常方便,阀门不需要拆离管道即可完成。
D71F衬氟蝶阀广泛适用于各种不同类型工业管道中液体和气体(包括蒸 气)的输送,特别是具有严重腐蚀性介质的使用场合,如:硫酸、氢氟酸、磷酸、氯气、强碱、王水等具有强腐蚀性的介质。
蝶阀是用圆形蝶板作启闭件并随阀杆转动 来开启、关闭和调节流体通道的一种阀门。蝶阀的蝶板安装于管道的直径方向。在蝶阀阀体圆柱形通道内,圆盘形蝶板绕着轴线旋转,旋转角度为0°~90°之间,旋转到90°时,阀门则程全开状态。
蝶阀的结构特点 蝶阀具有结构简单、体积小、重量轻、材料耗用省,安装尺寸小,开关迅速、90°往复回转,驱动力矩小等特点,用于截断、接通、调节管路中的介质,具有良好的流体控制特性和关闭密封性能。蝶阀处于完全开启位置时,蝶板厚度是介质流经阀体时唯一的阻力,因此通过该阀门所产生的压力降很小,故具有较好的流量控制特性。蝶阀有弹密封和金属的密封两种密封型式。弹性密封阀门,密封圈可以镶嵌在阀体上或附在蝶板周边。 采用金属密封的阀门一般比弹性密封的阀门寿命长,但很难做到完全密封。金属密封能适应较高的工作温度,弹性密封则具有受温度限制的缺陷。 如果要求蝶阀作为流量控制使用,主要的是正确选择阀门的尺寸和类型。蝶阀的结构原理尤其适合制作大口径阀门。
蝶阀不仅在石油、煤气、化工、水处理等一般工业上得到广泛应用,而且还应用于热电站的冷却水系统。 常用的蝶阀有对夹式蝶阀、法兰式蝶阀、对焊式蝶阀三种。对夹式蝶阀是用双头螺栓将阀门连接在两管道法兰之间;法兰式蝶阀是阀门上带有法兰,用螺栓将阀门上两端法兰连接在管道法兰上;对焊式蝶阀的两端面与管道焊接连接。 蝶板的流线形设计,使流体阻力损失小,可谓是一种节能型产品。 阀杆为通杆结构,经过调质处理,有良好的综合力学性能和抗腐蚀性,抗擦伤性。蝶阀启闭时阀杆只作旋转运动而不作升降运行,阀杆的填料不易破坏,密封可靠。与蝶板锥销固定,外伸端为防冲出型设计,以免在阀杆与蝶板连接处意外断裂时阀杆崩出。
设计标准:
D71F46衬氟手动对夹式蝶阀设计与制造标准:
|
制造标准 |
GB/T 122387-89 |
|
法兰标准 |
GB9113-2000、GB17241.6-1998 |
|
结构长度标准 |
GB12221-89 |
|
检验标准 |
GB/T 13927-92 |
性能规范:
D71F46衬氟手动对夹式蝶阀主要性能规范:
|
公称通经DN(mm) |
50~2000 |
50~1600 | |
|
公称药理PN(MPa) |
0.6 |
1.0 |
1.6 |
|
密封试验(MPa) |
0.66 |
1.1 |
1.76 |
|
强度试验(MPa) |
0.9 |
1.5 |
2.4 |
|
适用温度 |
丁腈橡胶:-40℃~90℃氟橡胶:-20℃~200℃ | ||
|
适用介质 |
水、空气、天然气、油品及弱腐蚀性流体 | ||
|
泄漏率 |
符合GB/T13927-92标准 | ||
|
驱动方式 |
蜗轮传动、电动、气动、液动 | ||
零件材料:
D71F46衬氟手动对夹式蝶阀主要零件材料:
|
零件名称 |
材料 |
|
上下阀体 |
铸铁、铸钢、不锈钢、衬F46、F3 |
|
阀座 |
铸钢 |
|
带杆蝶板 |
铸钢、不锈钢、衬F46、F3 |
|
填料 |
F4 |
|
衬垫 |
硅橡胶 |
|
蜗轮手柄 |
球墨铸铁 |

结构特点:
D71F46衬氟手动对夹式蝶阀主要结构特点:
1、本阀采用双偏心结构,具有越关越紧的密封功能,密封性能可靠。
2、密封副材料选用不锈钢和丁腈耐油橡胶配对,使用寿命长。
3、橡胶密封圈即可位于阀体上,也可以位于蝶板上,可适用不同特点的介质,供用户选择。
4、蝶板采用框架结构,强度高,过流面积大,流阻小。
5、整体烤漆、能有效地防止锈蚀且只要更换密封阀座密封材料,就可使用于不同介质。
6、本阀具有双向密封功能,安装时不受介质流向的控制,也不受空间位置的影响,可在任何方向安装。
7、本阀结构独特,操作灵活,省力,方便。

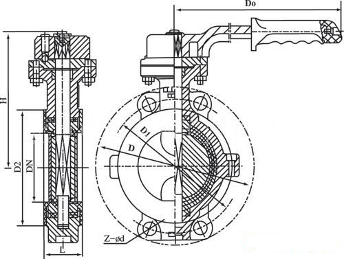
尺寸参数:
D71F46衬氟手动对夹式蝶阀主要尺寸参数:
|
公称通经 |
L |
D |
D1 |
D2 |
f |
b |
Z-φd |
D |
D1 |
D2 |
f |
b |
Z-φd | |
|
DN(mm) |
NPS(inch) |
PN1.0MPa |
PN1.6MPa | |||||||||||
|
40 |
3/2 |
33 |
145 |
110 |
85 |
3 |
18 |
4-φ18 |
145 |
110 |
85 |
3 |
18 |
4-φ18 |
|
50 |
2 |
43 |
160 |
125 |
100 |
3 |
20 |
4-φ18 |
160 |
125 |
100 |
3 |
20 |
4-φ18 |
|
65 |
5/2 |
46 |
180 |
145 |
120 |
3 |
20 |
4-φ18 |
180 |
145 |
120 |
3 |
20 |
4-φ18 |
|
80 |
3 |
46 |
195 |
160 |
135 |
3 |
22 |
4-φ18 |
195 |
160 |
135 |
3 |
22 |
8-φ18 |
|
100 |
4 |
52 |
215 |
|
155 |
3 |
22 |
8-φ18 |
215 |
180 |
155 |
3 |
24 |
8, -φ18 |
|
125 |
5 |
56 |
245 |
210 |
185 |
3 |
24 |
8-φ18 |
245 |
210 |
185 |
3 |
26 |
8-φ18 |
|
150 |
6 |
56 |
280 |
240 |
210 |
3 |
24 |
8-φ23 |
280 |
240 |
210 |
3 |
28 |
8-φ18 |
|
200 |
8 |
60 |
335 |
295 |
265 |
3 |
26 |
8-φ23 |
335 |
295 |
265 |
3 |
30 |
12-φ23 |
|
250 |
10 |
68 |
390 |
350 |
320 |
3 |
28 |
12-φ23 |
405 |
355 |
320 |
3 |
32 |
12-φ25 |
|
300 |
12 |
78 |
440 |
400 |
368 |
3 |
28 |
12-φ23 |
460 |
410 |
375 |
4 |
34 |
12-φ25 |
|
350 |
14 |
78 |
500 |
460 |
428 |
4 |
30 |
16-φ23 |
520 |
470 |
435 |
4 |
38 |
16-φ25 |
|
400 |
16 |
102 |
565 |
515 |
482 |
4 |
32 |
16-φ25 |
580 |
525 |
485 |
4 |
40 |
16-φ30 |
|
450 |
18 |
114 |
615 |
565 |
532 |
4 |
32 |
20-φ25 |
640 |
585 |
545 |
4 |
44 |
20-φ30 |
|
500 |
20 |
127 |
670 |
620 |
585 |
4 |
34 |
20-φ25 |
705 |
650 |
608 |
4 |
46 |
20-φ34 |
|
600 |
24 |
154 |
780 |
725 |
685 |
5 |
36 |
20-φ30 |
840 |
770 |
718 |
5 |
54 |
20-φ41 |
|
700 |
28 |
165 |
895 |
840 |
800 |
5 |
40 |
24-φ30 |
910 |
840 |
788 |
5 |
54 |
24-φ41 |
|
800 |
32 |
190 |
1010 |
950 |
905 |
5 |
44 |
24-φ34 |
1020 |
950 |
898 |
5 |
54 |
24-φ41 |
|
900 |
36 |
203 |
1110 |
1050 |
1005 |
5 |
46 |
28-φ34 |
1120 |
1050 |
998 |
5 |
54 |
28-φ41 |
|
1000 |
40 |
216 |
1220 |
1160 |
1115 |
5 |
50 |
28-φ34 |
1255 |
1170 |
1110 |
5 |
60 |
28-φ48 |
|
1200 |
48 |
254 |
1450 |
1380 |
1325 |
5 |
56 |
32-φ41 |
||||||
订货须知:
1、①产品名称与型号②公称直径③阀体材质④公称压力⑤使用介质⑥连接方式⑦使用温度⑧是否带附件以便我们为您正确选型。
2、如有特殊要求时请在订购产品时注明
3、若已经由设计单位选定的型号,请按型号直接向我司销售部订购。
4、当使用的场合非常重要或环境比较复杂时,请您尽量提供设计图。
企业宣传:
上海飞塔阀门有限公司为阀门业界内的新兴企业,我司本着“更高质量的产品,更优势的价格,更人性化的服务”为企业宗旨,为广大客户倾情服务。上海飞塔专业生产各种规格阀门,产品主广泛用于石油、化工、冶金、电力、制药、给排水等行业,产品深受客服的青睐和好评。公司竭诚欢迎社会各界人士光临咨询,建立长期稳定的合作关系,携手共创辉煌的明天。

