


产品名片:
飞塔阀门有限公司生产的H41,HC41(B型),H41-16T型消声止回阀。适用于给、排水管道,阀瓣采用进出口两端中心轴导向,启闭灵活,可水平定装或垂直安装。阀瓣采用弹簧加载,其快速关闭能有效地减小水锤压力,密封性能好,关闭无噪声。它具有体积小、重量轻、流体阻力小、耐疲劳、寿命长等优点。
H41X全铜消声止回阀是指依靠介质本身流动而自动开、闭阀瓣,用来防止介质倒流的阀门,又称逆止阀、单向阀、逆流阀、和背压阀。止回阀属于一种自动阀门,其主要作用是防止介质倒流、防止泵及驱动电动机反转,以及容器介质的泄放。止回阀还可用于给其中的压力可能升至超过系统压的辅助系统提供补给的管路上。止回阀主要可分为旋启式止回阀(依重心旋转)与升降式止回阀(沿轴线移动)。
安装要点:
1、在管线中不要使止回阀承受重量,大型的止回阀应独立支撑,使之不受管系产生的压力的影响。
2、安装时注意介质流动的方向应与阀体所标箭头方向一致。
3、升降式垂直瓣止回阀应安装在垂直管道上。
4、升降式水平瓣止回阀应安装在水平管道上。
设计标准:
《通用阀门 铁制旋启式止回阀》GB/T 13932-92
《通用阀门 钢制旋启式止回阀》GB 12236 -1989
《通用阀门 铁制截止阀与升降式止回阀》GB 12233 -2006
《对夹式止回阀》JB/T 8937-1999
《钢制阀门 一般要求》GB/T 12224-2005
《阀门的检验与试验》JB/T 9092-1999
|
型号 |
公称压力 |
试验压力PS(Mpa) |
工作温度 |
适用介质 | |
|
PN(Mpa) |
壳体 |
密封 |
(℃) | ||
|
H41X |
1 |
1.5 |
1.1 |
≤80 |
洁净水 |
|
1.6 |
2.4 |
1.76 | |||
|
2.5 |
3.75 |
2.75 | |||
零件材料:
H41X全铜消声止回阀主要零件材料:
|
型 号 |
阀 体 |
密 封 圈 |
弹 簧 |
|
H41X-10 |
全铜 |
丁腈橡胶(NBR) |
不锈钢丝lCr18Ni9Ti |
|
H41X-16 |
全铜 |
丁腈橡胶(NBR) |
不锈钢丝lCr18Ni9Ti |
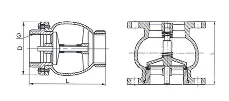
尺寸参数:
H41X全铜消声止回阀主要技术参数
|
公称压力 |
公称通径 |
尺寸(mm) |
公称压力 |
公称通径 |
尺寸(mm) | ||||||||
|
PN |
DN |
PN |
DN | ||||||||||
|
(mm) |
(mm) |
L |
D |
K |
b |
z-фd |
(mm) |
(mm) |
L |
D |
K |
b |
z-фd |
|
1.0 |
40 |
112 |
145 |
110 |
18 |
4-18 |
1.6 |
40 |
112 |
145 |
110 |
18 |
4-18 |
|
50 |
120 |
160 |
125 |
20 |
4-18 |
50 |
120 |
160 |
125 |
20 |
4-18 | ||
|
65 |
130 |
180 |
145 |
20 |
4-18 |
65 |
130 |
180 |
145 |
20 |
4-18 | ||
|
80 |
150 |
195 |
160 |
22 |
8-18 |
80 |
150 |
195 |
160 |
22 |
8-18 | ||
|
100 |
165 |
215 |
180 |
24 |
8-18 |
100 |
165 |
215 |
180 |
24 |
8-18 | ||
|
125 |
190 |
245 |
210 |
26 |
8-18 |
125 |
190 |
245 |
210 |
26 |
8-18 | ||
|
150 |
210 |
280 |
240 |
26 |
8-22 |
150 |
210 |
280 |
240 |
26 |
8-22 | ||
|
200 |
255 |
335 |
295 |
28 |
8-22 |
200 |
255 |
335 |
295 |
30 |
12-22 | ||
|
250 |
310 |
390 |
350 |
28 |
12-22 |
250 |
310 |
405 |
355 |
32 |
12-26 | ||
|
300 |
320 |
440 |
400 |
28 |
12-22 |
300 |
320 |
460 |
410 |
32 |
12-26 | ||
|
350 |
380 |
500 |
460 |
30 |
16-22 |
350 |
380 |
520 |
470 |
36 |
16-26 | ||
|
400 |
405 |
565 |
515 |
32 |
16-26 |
400 |
405 |
580 |
525 |
38 |
16-30 | ||
|
450 |
430 |
615 |
565 |
32 |
20-26 |
450 |
430 |
640 |
585 |
40 |
20-30 | ||
|
500 |
450 |
670 |
620 |
34 |
20-26 |
500 |
450 |
715 |
650 |
42 |
20-33 | ||
|
600 |
510 |
780 |
725 |
36 |
20-30 |
600 |
510 |
840 |
770 |
48 |
20-36 | ||

订货须知:
1、①产品名称与型号②公称直径③阀体材质④公称压力⑤使用介质⑥连接方式⑦使用温度⑧是否带附件以便我们为您正确选型。
2、如有特殊要求时请在订购产品时注明
3、若已经由设计单位选定的型号,请按型号直接向我司销售部订购。
4、当使用的场合非常重要或环境比较复杂时,请您尽量提供设计图。
企业宣传:
上海飞塔阀门有限公司为阀门业界内的新兴企业,我司本着“更高质量的产品,更优势的价格,更人性化的服务”为企业宗旨,为广大客户倾情服务。上海飞塔专业生产各种规格阀门,产品主广泛用于石油、化工、冶金、电力、制药、给排水等行业,产品深受客服的青睐和好评。公司竭诚欢迎社会各界人士光临咨询,建立长期稳定的合作关系,携手共创辉煌的明天。

