


产品名片:
CS45H钟形浮子式倒吊桶疏水阀用于蒸汽主管、分汽缸、热交换器、硫化机、热风式干燥机、圆筒式干燥机、蒸馏器、浓缩装置、医院消毒器等。超小型、重量轻的ES5型最适用于空调机、洗涤机器、染声机等。全不锈钢的ESU5型专为食品工业、医院用汽设备制造。
自由浮球式疏水阀的基本作用是将蒸汽系统中的凝结水、空气和二氧化碳气体尽快排出;自由浮球式疏水阀时最大限度地自动防止蒸汽的泄露。自由浮球式疏水阀的品种很多,各有不同的性能。选用疏水阀时,首先应选其特性能满足蒸汽加热设备的最佳运行,然后才考虑其他客观条件,这样选择你所需要的疏水阀才是正确和有效的。蒸汽疏水阀的工作作用虽然简单,但在实际运行中有许多因素会影响蒸汽疏水阀的工作效果,如选型、安装、使用等。
CS45H钟形浮子式倒吊桶疏水阀SCCV关闭方式和双阀座差压机械安装在同一单元内寿命长久,当凝结水量增大时,吊桶失去浮力使得机械反向密封而产生压差,主阀开启而获得大排量,使用汽设备迅速启动,最大限度地发挥出机器的热效率。
设计标准:
CS45H钟形浮子式倒吊桶疏水阀主要设计标准:
设计与制造:GB12235
法兰尺寸:GB9113
结构长度:GB12221
检验与实验:GB/T13927
性能规范:
CS45H钟形浮子式倒吊桶疏水阀主要性能规范:
|
主要零部件材料表 Main patrs materials |
Body/Bonnel |
WCB、WC6 |
性能参数 Performance parameter |
Lowest working pressure |
10.0MPa |
|
Clock float |
Austria type body stainless steel |
The lowest supercooling degree |
0℃ | ||
|
Valve seat /valve cote |
Stainless alloy steel |
Highest pemission back pressure rate |
>85% | ||
|
In sets Filters |
Stainless steel |
Highest pemissible temperature |
铸钢425% Cast steel425% |
零件材料:
CS45H钟形浮子式倒吊桶疏水阀主要零件材料:
|
零件名称 |
材料 |
|
阀体,阀盖 |
铸铁,WCB,不锈钢 |
|
浮桶 |
不锈钢 |
|
阀座 |
不锈钢 |
|
排气阀 |
不锈钢 |
|
过滤网 |
不锈钢 |
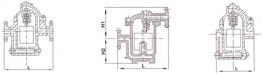
尺寸参数:
CS45H钟形浮子式倒吊桶疏水阀主要尺寸参数:
|
产品型号 |
公称通径DN(mm) |
连接方式 |
使用压力范围 |
最高允许温度℃ |
阀体材质 |
主要零件材质 |
外形尺寸 | |||
|
L |
H1 |
H2 |
W | |||||||
|
ER105 |
20-40 |
内螺纹 |
0.01-0.3-0.7 |
220 |
WCB |
SUS(3Cr13) |
200 |
160 |
135 |
- |
|
ER105F |
15-25 |
法兰 |
0.01-0.3-0.7 |
220 |
WCB |
SUS(3Cr13) |
270 |
160 |
135 |
- |
|
ER110 |
15-20 |
法兰 |
0.01-0.5-1.2 |
220 |
WCB |
SUS(3Cr13) |
310 |
160 |
131 |
- |
|
ER116 |
15-25 |
法兰 |
0.01-0.7-1.6 |
220 |
WCB |
SUS(3Cr13) |
310 |
160 |
131 |
- |
|
ER120 |
40-65 |
法兰 |
0.05-0.8-1.6 |
220 |
WCB |
SUS(3Cr13) |
420 |
175 |
214 |
- |
|
ER25 |
15-50 |
法兰 |
0.05-2.5-4.5-6.5 |
425 |
WCB |
SUS(3Cr13) |
380 |
|
180 |
345 |
|
ER25W |
15-50 |
承插焊 |
0.05-2.5-4.5-6.5 |
425 |
WCB |
SUS(3Cr13) |
380 |
2101 |
180 |
345 |

结构特点:
CS45H钟形浮子式倒吊桶疏水阀主要结构特点:
1、对凝结水的发生量适应性强,即可间歇排放,又可连续排放。
2、无与伦比的SCCV关闭系统,独特设计,具有补偿杠杆机械产生的误差,避免关闭时的钢性碰撞,关闭十分可靠,寿命长久。
3、内部零件全部采用不锈钢制造, 并且安装在阀盖上,维修保养极为方便。
4、背压率高。(85%)。
5、汽水分离可靠(水汽经U型通道从阀下部进入),阀内始终处于水封状态,有效阻止蒸汽泄漏。
6、敝口形的浮子抗水击。吊桶上设有溢出排气孔,可有效防止蒸汽汽锁、空气气堵现象。(非凝结性的高温空气也可排除)。
订货须知:
1、①产品名称与型号②公称直径③阀体材质④公称压力⑤使用介质⑥连接方式⑦使用温度⑧是否带附件以便我们为您正确选型。
2、如有特殊要求时请在订购产品时注明
3、若已经由设计单位选定的型号,请按型号直接向我司销售部订购。
4、当使用的场合非常重要或环境比较复杂时,请您尽量提供设计图。
企业宣传:
上海飞塔阀门有限公司为阀门业界内的新兴企业,我司本着“更高质量的产品,更优势的价格,更人性化的服务”为企业宗旨,为广大客户倾情服务。上海飞塔专业生产各种规格阀门,产品主广泛用于石油、化工、冶金、电力、制药、给排水等行业,产品深受客服的青睐和好评。公司竭诚欢迎社会各界人士光临咨询,建立长期稳定的合作关系,携手共创辉煌的明天。

