


产品名片:
CS45H自由半浮球式疏水阀是机械型疏水阀中工作性能最可靠的疏水阀之一。它的内部结构只有一个半浮球式的球桶为活动部件,开口朝下,半浮球式的球桶外圆经过精细研磨,整个球面都可为密封面。使用寿命很长,能抗水锤,没有易损件,无故障,经久耐用,无蒸汽泄漏,节能效果 好。该疏水阀广泛用于蒸汽加热设备,蒸汽管网凝结水回收系统,是当今结构最先进的疏水阀之一。
自由浮球式疏水阀的基本作用是将蒸汽系统中的凝结水、空气和二氧化碳气体尽快排出;自由浮球式疏水阀时最大限度地自动防止蒸汽的泄露。自由浮球式疏水阀的品种很多,各有不同的性能。选用疏水阀时,首先应选其特性能满足蒸汽加热设备的最佳运行,然后才考虑其他客观条件,这样选择你所需要的疏水阀才是正确和有效的。蒸汽疏水阀的工作作用虽然简单,但在实际运行中有许多因素会影响蒸汽疏水阀的工作效果,如选型、安装、使用等。
CS45H自由半浮球式疏水阀只有一个半浮球式的球桶为活动部件,开口朝下,球桶即是启闭件,又是密封件。当装置刚启动时,管道内的空气和低温凝结水经过发射管进入疏 水阀内,阀内的双金属片排空元件把球桶弹开,阀门开启,空气和低温凝结水迅速排出。当蒸汽进入球桶内,球桶产生向上浮力,同时阀内的温度升高,双金属片排 空元件收缩,球捅漂向阀口,阀门关闭。当球桶内的蒸汽变成凝结水,球桶失去浮力往下沉,阀门开启,凝结水迅速排出。当蒸汽再进入球桶之内,阀门再关闭,间 断和连续工作。由于阀座处于水封隔离,水汽分开,工作时无蒸汽泄漏。
设计标准:
CS45H自由半浮球式疏水阀主要设计标准:
设计与制造:GB12235
法兰尺寸:GB9113
结构长度:GB12221
检验与实验:GB/T13927
性能规范:
CS45H自由半浮球式疏水阀主要性能规范:
|
公称压力 |
试验压力 |
最高工作压力 |
最高工作温度(℃) |
适用介质 |
漏汽率 |
最高背压率(%) |
|
1.6 |
2.4 |
1.6 |
220 |
蒸汽、凝结水 |
≤0.5 |
85 |
零件材料:
CS45H自由半浮球式疏水阀主要零件材料:
|
部 件 名 称 |
材 料 |
|
阀 体、阀 盖 |
WCB |
|
半 浮 球 |
304 |
|
阀 座 |
3cr13 |
|
过 滤 网 |
304 |
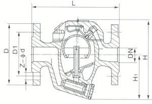
尺寸参数:
CS45H自由半浮球式疏水阀主要尺寸参数:
|
型 号 |
通径 |
连接方式 |
| |||
|
L |
H1 |
H2 |
W | |||
|
CS15H--16C |
15 |
螺纹 |
170 |
75 |
93 |
120 |
|
20 |
170 |
75 |
93 |
120 | ||
|
25 |
170 |
75 |
93 |
120 | ||
|
32 |
210 |
95 |
115 |
160 | ||
|
40 |
210 |
95 |
115 |
160 | ||
|
50 |
210 |
95 |
115 |
160 | ||
|
CS45H—16C |
15 |
法兰 |
230 |
75 |
93 |
120 |
|
20 |
230 |
75 |
93 |
120 | ||
|
25 |
230 |
75 |
93 |
120 | ||
|
32 |
270 |
95 |
115 |
160 | ||
|
40 |
270 |
95 |
115 |
160 | ||
|
50 |
270 |
95 |
115 |
160 | ||
|
CS45H--16C-(AA) |
65 |
法兰 |
380 |
177 |
172 |
290 |
|
80 |
380 |
177 |
172 |
290 | ||
|
100 |
380 |
177 |
172 |
290 | ||

结构特点:
CS45H自由半浮球式疏水阀主要结构特点:
1、对凝结水的发生量适应性强,即可间歇排放,又可连续排放。
2、无与伦比的SCCV关闭系统,独特设计,具有补偿杠杆机械产生的误差,避免关闭时的钢性碰撞,关闭十分可靠,寿命长久。
3、内部零件全部采用不锈钢制造, 并且安装在阀盖上,维修保养极为方便。
4、背压率高。(85%)。
5、汽水分离可靠(水汽经U型通道从阀下部进入),阀内始终处于水封状态,有效阻止蒸汽泄漏。
6、敝口形的浮子抗水击。吊桶上设有溢出排气孔,可有效防止蒸汽汽锁、空气气堵现象。(非凝结性的高温空气也可排除)。
订货须知:
1、①产品名称与型号②公称直径③阀体材质④公称压力⑤使用介质⑥连接方式⑦使用温度⑧是否带附件以便我们为您正确选型。
2、如有特殊要求时请在订购产品时注明
3、若已经由设计单位选定的型号,请按型号直接向我司销售部订购。
4、当使用的场合非常重要或环境比较复杂时,请您尽量提供设计图。
企业宣传:
上海飞塔阀门有限公司为阀门业界内的新兴企业,我司本着“更高质量的产品,更优势的价格,更人性化的服务”为企业宗旨,为广大客户倾情服务。上海飞塔专业生产各种规格阀门,产品主广泛用于石油、化工、冶金、电力、制药、给排水等行业,产品深受客服的青睐和好评。公司竭诚欢迎社会各界人士光临咨询,建立长期稳定的合作关系,携手共创辉煌的明天。

